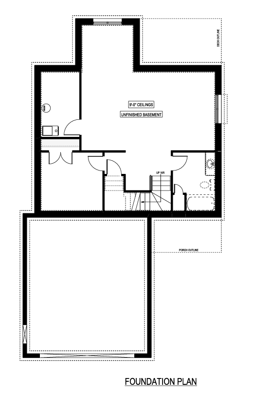
The victoria

two-storey i 2098SQ.FT. + BASEMENT DEVELOPMENT

3 BEDROOM i 2.5 BATHROOM


Make it yours.

-imagine-design-create-inspire-



Previous
Previous

The Bridgeport

Next
Next

The Hazelwood